产品分类
联系我们
您现在的位置:网站首页 > 产品展示
LTX-D楔形流量计

LTX-D楔形流量计是一种新型节流差压式流量测量仪表,它可以在高粘度、低雷诺数(雷诺数>500即可使用)的流体情况下进行高精度的流量测量;在流速较低、流量小、管径大的流量测量场合有无可比拟的优势和不可替代的作用。
LTX-D楔形流量计具有流量系数、非线性误差、温度变化、密度变化等参数的修正功能;测量精度可达0.5%;可具有现场显示和标准电流信号(4~20mA DC)输出,可方便地用于自动控制系统或与计算机联网,进行流量或其他参数的自动调节和控制。
LTX-D楔形流量计主要用于高粘度(重油、渣油、柴油、机油等)、工业煤气(焦炉煤气、高炉煤气、发生炉煤气、城市煤气)、氢气、氮气、空气、水蒸汽、污水液体等介质的流量测量。
这种流量计结构简单、无可动部件,不易被流体磨损,工作性能稳定、可靠,使用寿命长;它的测量元件及取压装置结构特殊,流体通过时不形成滞留或堵塞,压力损失较小,是在雷诺数较低的情况下进行高精度流量测量的理想选择。
LTX-D楔形流量计配带双法兰差压变送器
产品简要介绍:LTX-D楔形流量计是八十年代开始开始逐步走向实用的一种新型流量计,其检测件是一个V字形楔块(又称楔形节流件),它的圆滑顶角朝下,这样有利于含悬浮颗粒的液体或粘稠液体顺利通过,不会在节流件上游侧产生滞流。因此特别适合在石油、化工等行业中用于体积流量和质量流量的测量。
产品主要特点:
一是重复性好、精确度高,经标定的楔形流量计,精度达0.5 级;
二是具有自清洁能力,无滞流区;
三是耐磨损、寿命长、可靠性高;
四是永久压损比孔板小;
五是一体型结构,现场安装无需按装导压管路,直接与管道进行螺纹或法兰连接。施工省时省力,维护方便。
产品主要特点:
一是特别适合于高粘度、低雷诺数、带悬浮颗粒或气泡的介质测量;
二是测量精度不受流体介质介电常数等特性的影响和限制;
三是楔形件结构设计特殊,有导流作用,防堵塞;
四是具有流体粘度变化、温度变化、密度变化等补偿功能;
五是抗振动、抗冲击、抗脏污、抗腐蚀、防爆;
六是具有双向流量测量功能;
七是测量精度高;
八是结构简单、牢固、高可靠性,安装方便,运行维护费用低;
九是无运动部件,无磨损,长期使用时不需要重新标定。
产品主要技术参数:
一是测量精度: ±0.5%~±1.0%
二是长期运行精度:0.2%F.S/Y。
三是最低流速:0.01m/s。
四是使用寿命:可长达十年以上。
五是量 程 比:≥10:1
六是雷诺数系数使用范围:下限300,上限达1×106以上。
七是测量液体粘度上限:500MPa·S。
八是工作压力范围:-0.1~60MPa。
九是工作温度范围:-50~560℃。
LTX-D楔形流量计安装注意事项:
1、一般楔形流量传感器附有前后测量管,可在水平或垂直安装及使用。当传感器在垂直管道上安装时,流体应自上而下流动。测量液体时应注意使差压变送器能翻遍地排除气泡,以免引起仪表零点漂移;
2、传感器上下游侧应配置直管段,管道内壁应光滑、清洁、无附着物,只管段长度如表
3、水平安装时,楔式差压元件应与管道中心线成90度。对于垂直安装,由于取压点之间轻微的静压影响必须注意差压变送器调零。
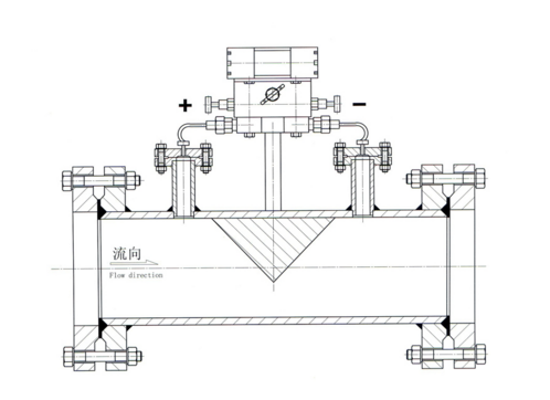
结构形式
LTX-D楔形流量计按其组装方式分为一体型和分离型,按其连接方式分为法兰连接、焊接连接、螺纹连接及对夹式连接,按其取压方式分为普通取压、法兰密封取压等结构。详见下图:

 


>>点此返回

沪公网安备 31011402004186号